2013

ANTIPODE

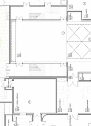
Projet

Construction d’un nouveau équipement de quartier pour la ZAC de la Courrouze :

Salle de musiques actuelles

 

Lieu

Rennes (35)

 

Client

Ville de Rennes

 

Architectes

TETRARC mandataires

 

Surface

 

4687 m² SP

 

Coût

9,45 M€ HT

 

Calendrier

Concours  2013